ESTRENA CASA EN SAN SEBASTIAN CHALCO.
DETALLE DEL BIEN INMUEBLE
Tipo de inmueble:
Casa en venta
Estado del inmueble:
Por estrenar
Precio:
$ 1.650.000,00 pesos mexicanos
País:
México
Estado:
Estado de México
Municipio:
Chalco
Zona:
Centro
Barrio:
CALLE INDEPENDENCIA #0 BARRIO SAN SEBASTIAN
Área del terreno:
108,0 m2
Área de construcción:
108 m2
Nº de habitaciones:
3
Nº de baños:
2
Nº de medio baños:
1
Nº de plantas:
2
Nº de parqueaderos:
1
Comparta en sus redes sociales
Descripción de la propiedad
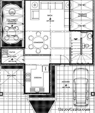
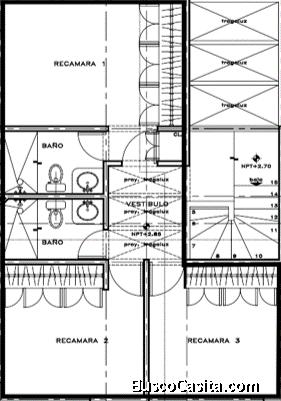
Ubicadas dentro de una privada y en 2 niveles con 108m2 tenemos estas casas en venta, espacios distribuidos de la siguiente manera:

En planta baja tendrás: sala-comedor de buen tamaño, cocina, medio baño, terraza interior y 1 lugar de estacionamiento.
Primer nivel: 3 recámaras y 2 baños completos. La casa tiene azotea y cuenta con muy buena iluminación natural. Rodeada de Avenidas principales como Tláhuac y Avenida Las Torres. Contarás con servicios como gasolineras, tiendas de conveniencia, farmacias, papelerías, laboratorios, gimnasios, escuelas y transporte público cerca. La privada cuenta con áreas verdes y estacionamiento para visitas.
Características Adicionales
En esta propiedad no se ha ingresado el detalle de las características adicionales.
Fotografías del Inmueble
ESTRENA CASA EN SAN SEBASTIAN CHALCO.
Enviar mensaje al vendedor
Sus datos personales no se publicarán, únicamente el vendedor los recibirá y se comunicará con usted directamente.
Nombre:
Email:
Teléfono:
Mensaje:
Reportar esta propiedad
¿Esta propiedad está vendida, alquilada, no es un anuncio inmobiliario o existe algún otro tipo de problema con la publicación? Repórtela por favor:
Descripción del problema:

Disponemos de una gran variedad de bienes inmuebles en Chalco. Utilice nuestra herramienta de búsqueda avanzada para encontrar lo que necesite o anuncie completamente GRATIS sus propiedades de bienes raices en nuestro Portal Inmobiliario Gratuito.

Bienes inmuebles similares:

se vende terreno de 200m2 con 4 cuartos provicionales
BONITA CASA DE 2 RECAMARAS EN HEROES CHALCO
CASA PLUS EN UNIDAD EX HACIENDA GUADALUPE, LA CANDELARIA TLAPALA
TRASPASO DE CASA EN HEROES CHALCO
CASA EN JACALONES I CHALCO
CASA EN VENTA EN VILLAS DE SAN MARTIN CHALCO
TERRENO EN ESQUINA EN VENTA SAN MARTIN XICO
SE VENDE CASA EN ALAMOS CHALCO

Otros bienes inmuebles en Chalco:

Departamentos en Chalco  Departamentos en venta en Chalco  Casas en Chalco  Casas en venta en Chalco  Bungalows en Chalco  Bungalows en venta en Chalco  Terrenos en Chalco  Terrenos en venta en Chalco  Oficinas en Chalco  Oficinas en venta en Chalco  Locales comerciales en Chalco  Locales comerciales en venta en Chalco  Edificios en Chalco  Edificios en venta en Chalco  Bodegas en Chalco  Bodegas en venta en Chalco  Galpones en Chalco  Galpones en venta en Chalco  Departamentos en renta en Chalco  Casas en renta en Chalco  Bungalows en renta en Chalco  Oficinas en renta en Chalco  Locales comerciales en renta en Chalco  Edificios en renta en Chalco  Hoteles en renta en Chalco  Moteles en renta en Chalco  Hostales en renta en Chalco  Habitaciones en renta en Chalco  Bodegas en renta en Chalco  Galpones en renta en Chalco  Parkings en renta en Chalco  Cuartos en renta en Chalco  

Artículos de temas interesantes:

Inversiones Inmobiliarias
Formas de invertir su dinero en el mercado de bienes raíces mediante la compra/venta.
Inversiones en Forex
Que es el mercado forex online, macro. Inversiones con alta rentabilidad.
Inversiones en la Bolsa de Valores
Conocimientos básicos a considerar antes de invertir. Compra venta de acciones.
Fondos de Inversión
Qué son los fondos de inversión, clasificación y riesgos.
Inversiones Financieras
Qué son las inversiones financieras y su clasificación según el plazo.